If you are accessing this story via Facebook but you are a subscriber then you will be unable to access the story. Facebook wants you to stay and read in the app and your login details are not shared with Facebook. If you experience problems with accessing the news but have subscribed, please contact subscriptions@thestrayferret.co.uk. In a time of both misinformation and too much information, quality journalism is more crucial than ever. By subscribing, you can help us get the story right.
Already a subscriber? Log in here.
11
Mar 2025

Plans to convert a former office building into flats in Harrogate have been given the go-ahead.
Matthew Donnelly, of Novalux Property Limited, submitted a prior notification application to convert the former McCormicks Solicitors office on East Parade into eight flats in January.
The legal firm moved into the premises in 1991 but relocated to Scottsdale House on Springfield Avenue last summer.
The application sought approval to convert the site into five one-bedroom flats, two two-bedroom flats and a three-bedroom flat.
“Whilst internal alterations are proposed to configure the internal space to form the eight apartments, no external alterations are proposed given the application is simply concerned with change of use”, plans say.
An existing car park to the rear of the five-storey building will be retained and will provide four parking spaces.
Plans say the parking spaces will likely to be allocated to the two and three-bedroom apartments, and a final space will be for visitors or deliveries.
They add:
The original use of the buildings was residential, where both No.35 and 37 were once dwellings. As such the front elevations to both buildings present themselves as dwellings where there is a main front door and then the windows are arranged with a bay window to one side at lower, ground and first floors.
As such, neither property was designed with a shop window or shop frontage, and the businesses have simply applied branding to the glass within the windows of the original dwelling.

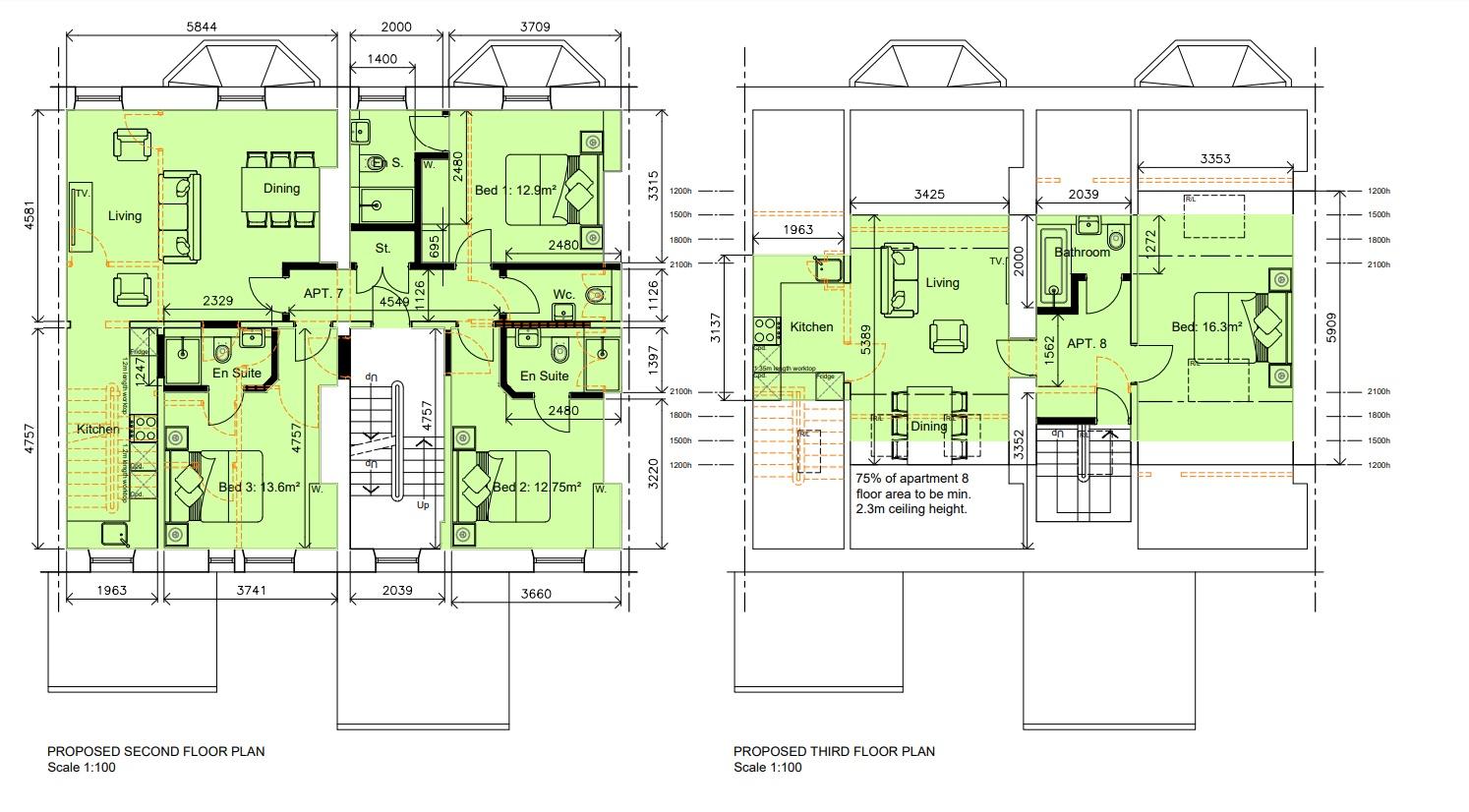
The proposed site layout for two of the floors.
The development would accommodate a maximum of 22 people if each bedroom is fully occupied. The application says the residential conversion would be of “lesser intensity” due to fewer people occupying the site than when it was used an office.
Plans also say using the building as an office led to “several visual sources” having a “negative impact” on the street’s appearance, including erecting signs in the front garden.
The applicant believes the development would enhance the appearance of East Parade and will support the vitality and viability of the town centre.
The application was approved subject to conditions.
0