If you are accessing this story via Facebook but you are a subscriber then you will be unable to access the story. Facebook wants you to stay and read in the app and your login details are not shared with Facebook. If you experience problems with accessing the news but have subscribed, please contact subscriptions@thestrayferret.co.uk. In a time of both misinformation and too much information, quality journalism is more crucial than ever. By subscribing, you can help us get the story right.
Already a subscriber? Log in here.
15
Dec 2023

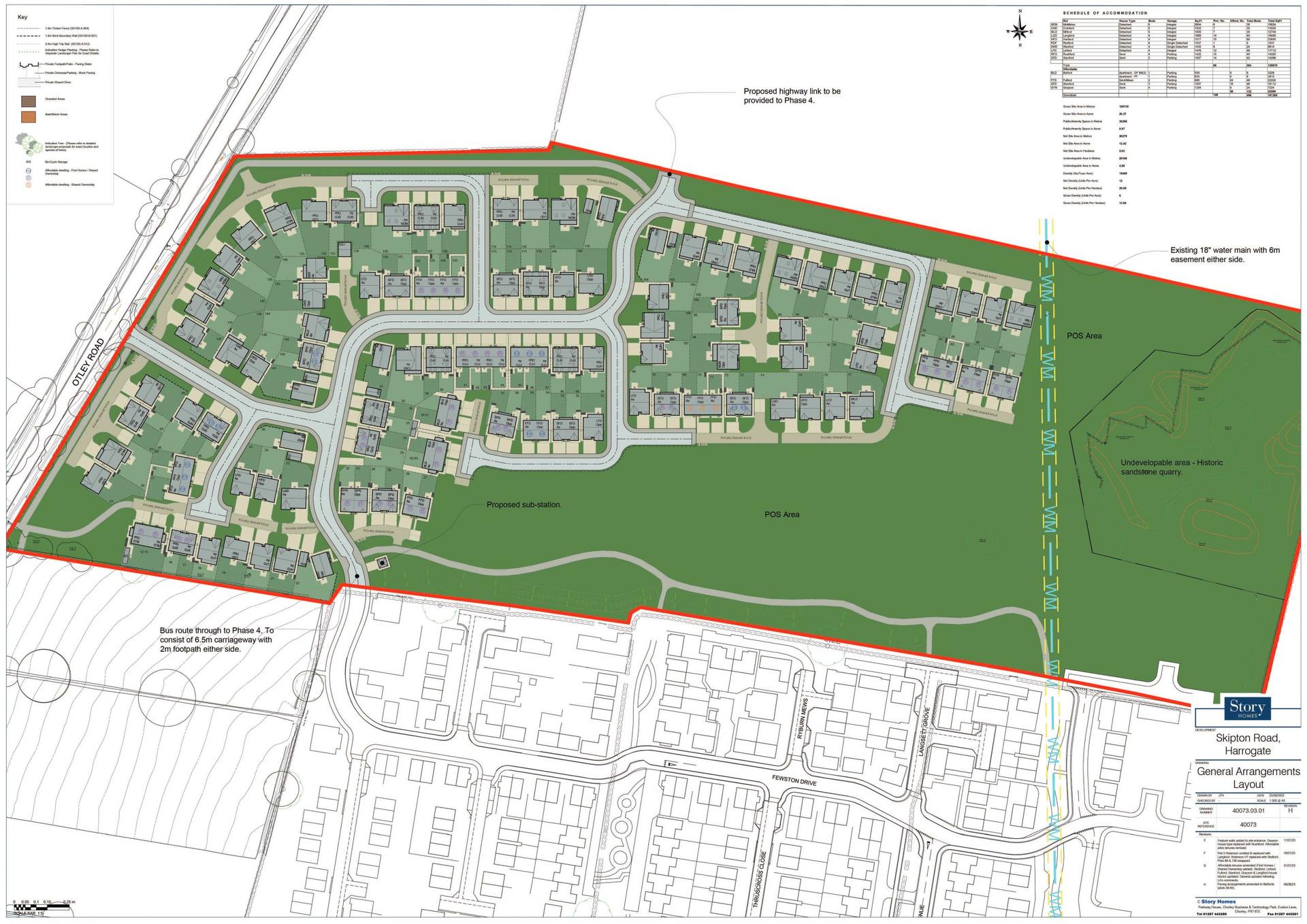
Plans have been submitted to build 146 homes in Harrogate.
Cumbrian housebuilder Story Homes has applied to North Yorkshire Council for permission to build the homes on land east of Otley Road in Harrogate.
A media release by Story Homes today said the land is allocated for housing in the Harrogate District Local Plan 2014-35, which outlines where development can take place.
The development would be built in partnership with housing association Home Group and 40% of the homes would be classed as affordable.
The scheme would include landscaped open space and a £500,000 community infrastructure levy, which is a charge levied by local authorities on new developments.

The site off Otley Road.
Today's media statement said:
Hannah Richins, planning manager for Story Homes North West said the scheme would "introduce our beautifully crafted homes into a new housing market".
Home Group, under its brand Persona Homes, has already delivered over 220 homes on Skipton Road in Harrogate.
Kitson Keen, director of development at Home Group said:
0