If you are accessing this story via Facebook but you are a subscriber then you will be unable to access the story. Facebook wants you to stay and read in the app and your login details are not shared with Facebook. If you experience problems with accessing the news but have subscribed, please contact subscriptions@thestrayferret.co.uk. In a time of both misinformation and too much information, quality journalism is more crucial than ever. By subscribing, you can help us get the story right.
Already a subscriber? Log in here.
30
Jan

A commercial building in Harrogate is set to be converted into flats.
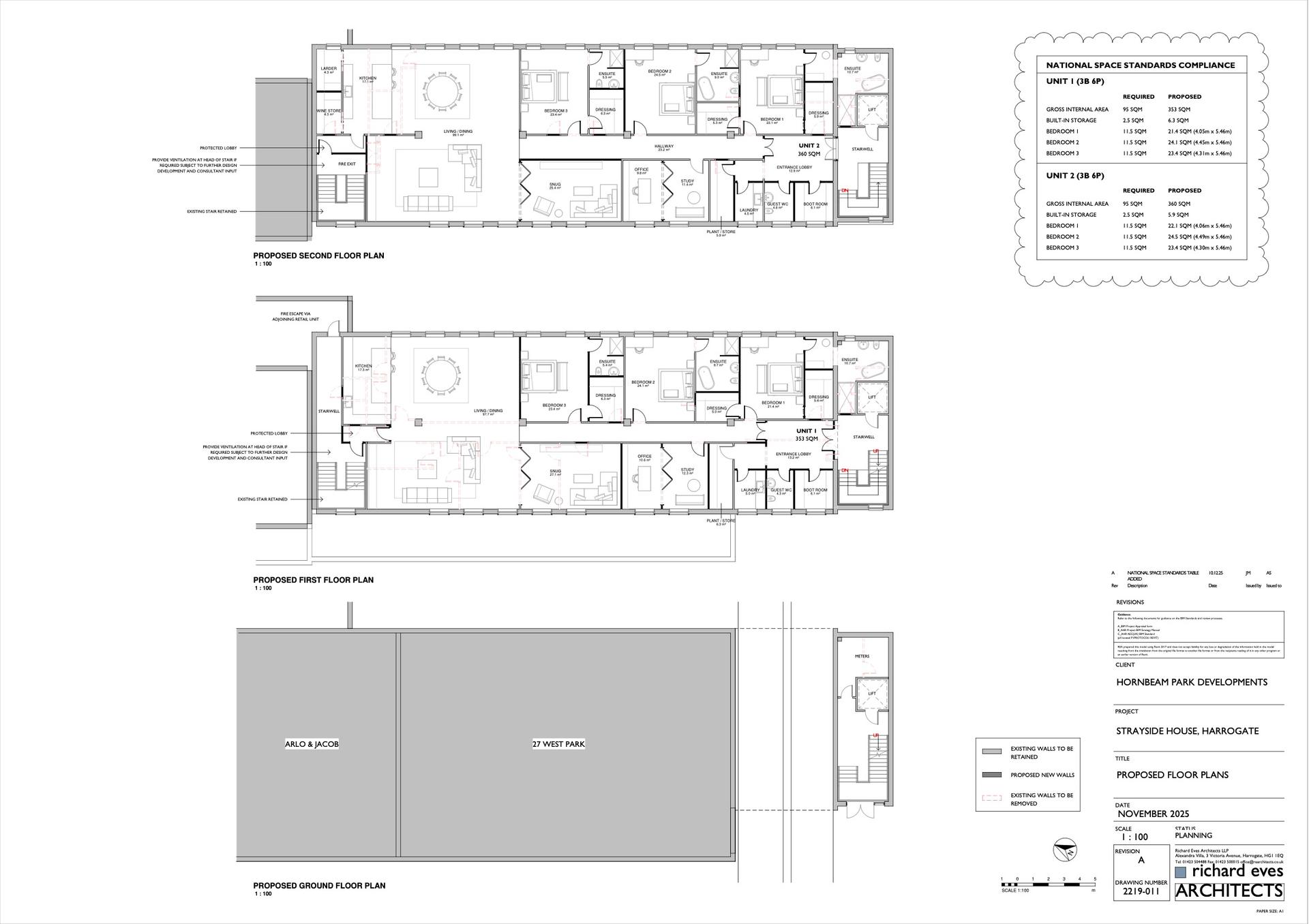
Hornbeam Park Developments last month lodged plans to convert the first and second floors of Strayside House on West Park into two flats.
The premises is currently occupied by Harrogate Dog Day Care, which announced it would be closing in February after a lengthy planning battle.
But North Yorkshire Council has now given the commercial property firm the green-light to turn the former office spaces into two three-bedroom flats.
According to planning documents, the development would convert the space into “high quality housing”, which would in turn “help support the creation of much-needed housing” in the area.
The property will be sub-divided to create the two dwellings, but the communal entrance area on the ground floor and a bike store to the rear of the property would be retained.
Plans say:
Due to the constraints of the existing building and the second stair escape route being via an adjacent retail unit, through consultation with fire safety consultants it was not considered feasible to split each floor into multiple units without requiring a substantial rework of the internal spaces and the provision of a new sprinkler system.
It was therefore considered that one single, high-quality residential unit for each floor would be the best approach, with the least impact on the existing building.
Proposed floor plans suggest the flats will include ensuite bedrooms, a laundry room, a boot room, dressing rooms, an open plan living and dining room and a snug.
The second floor flat could even feature a larder and wine store, according to the floorplan.
The plans were approved subject to conditions.

The proposed floor plans. Credit: Richard Eves Architects
Harrogate Dog Day Care took over Strayside House in April 2024 and has operated at the site ever since.
Owner Sarah Smith submitted two retrospective planning applications to convert the site into a dog day care facility and overnight accommodation - neither of which were successful due to noise concerns.
The company continued to operate despite not having relevant planning permission, which led the council to take enforcement action against it last September.
However, Ms Smith told the Stray Ferret at the time Harrogate Dog Day Care would be relocating to a “new location with an outside paddock”.
She did not disclose where the new premises would be and the company has remained at Strayside House since.
But Ms Smith took to social media earlier this month announcing the business will close on February 13.
She said the company has submitted three planning applications to the council – two relating to Strayside House and one “rural” application – which all “significantly passed extensive independent noise surveys”.
Despite this, all three were unsuccessful.
1