If you are accessing this story via Facebook but you are a subscriber then you will be unable to access the story. Facebook wants you to stay and read in the app and your login details are not shared with Facebook. If you experience problems with accessing the news but have subscribed, please contact subscriptions@thestrayferret.co.uk. In a time of both misinformation and too much information, quality journalism is more crucial than ever. By subscribing, you can help us get the story right.
Already a subscriber? Log in here.
03
Nov 2025

North Yorkshire Council has approved plans to convert a former takeaway in Starbeck into a convenience store.
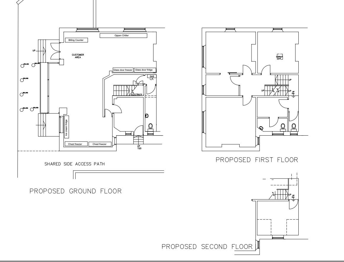
Magnus Innovations Ltd sought the council’s approval to convert the ground floor of the Stonefall Avenue unit formerly occupied by Papa Johns, which closed in May last year, into a shop that would sell food and household goods.
The first and second floors of the unit are understood to be vacant but were most recently used as residential flats, a council report says, but the application relates solely to the change of use of the ground floor.
The applicant did not seek to make any external changes to the site, but proposed to remove all existing temporary walls, internal structures and freezers to ensure a “clear and flexible layout”.
Magnus Innovations Ltd, which is registered to an address in Sowerby near Thirsk on Companies House, also planned to install new fridges and freezers, shelves and a check-out area.
According to the council report, the plans received two objections.
Objectors questioned the need for another shop in the area, particularly given its proximity to Tesco Express, the Co-op and Lidl, and raised concerns over the sale of alcohol and cigarettes potentially exacerbating anti-social behaviour.
They also felt there is insufficient parking and cited “existing congestion” on Stonefall Avenue and Knaresborough Road.
Harrogate Town Council neither objected nor supported the application but encouraged the applicant to include “sustainable design measures”, such as the use of solar panels and high-performance insulation.

Proposed site layout for the conversion of former Papa Johns unit in Starbeck.
Documents in support of the application said the new store would revive a vacant unit and, therefore, boost local employment and community needs.
The applicant said the proposal would not create any smells from cooking or frying food, unlike a hot food takeaway operation, and said the noise generated at the shop would be “significantly lower” than its previous use.
This would be due to customers visiting throughout the day, rather than a concentrated number of people mainly visiting the site at night, and deliveries would be “minimal and during daytime hours” using small vehicles.
“Customers are likely to arrive on foot or by a short car trip”, Magnus Innovations Ltd adds.
The council report, which said the shop would not generate more traffic and cited "generally unrestricted" parking provisions in the nearby vicinity of the unit, adds:
Concerns have been expressed about potential anti-social behaviour linked to the sale of alcohol and cigarettes. The application does not include any proposals for on-site consumption or activities outside the scope of Use Class E. The continued use of the site as a commercial use is not considered to materially increase crime risk compared to the previous takeaway use.
The council this week approved the plans subject to conditions, which included permitting the shop to operate between 7am and 11pm, Monday to Sunday.
The site became vacant after Papa Johns last year announced it would close 43 “low-performing branches” across the UK.
The company said the 43 identified sites, which included Starbeck, were no longer financially viable.
0