If you are accessing this story via Facebook but you are a subscriber then you will be unable to access the story. Facebook wants you to stay and read in the app and your login details are not shared with Facebook. If you experience problems with accessing the news but have subscribed, please contact subscriptions@thestrayferret.co.uk. In a time of both misinformation and too much information, quality journalism is more crucial than ever. By subscribing, you can help us get the story right.
Already a subscriber? Log in here.
29
Oct 2025

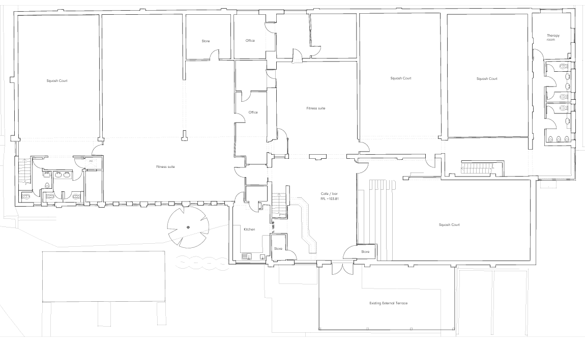
A proposal to extend the first-floor terrace at Harrogate Sports and Fitness Club has been approved.
The centre, on Hookstone Wood Road, applied to extend the terrace to provide more seating in August.
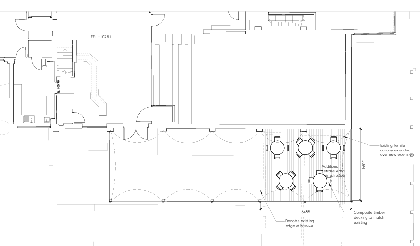
RJW Design Studio Ltd, the agents acting on behalf of the club, proposed an additional 33 square metres be added to the terrace.
This would see the terrace fully extended to the east edge of the building.

The existing terrace plan can be seen at the bottom of the picture.

The extended terrace would provide space for five more tables.
Consultation with the highway authority, environmental health officers and the estates manager determined that there were no objections to the proposed extension.
Planning officer Amy Benfold granted planning permission on October 14.
Her public report said “the proposed development will not detract from the appearance or character of the area".
She concluded:
The proposal will not adversely affect neighbouring amenity and will not negatively impact highway safety or enjoyment of the public right of way. No trees will need to be removed to facilitate the development.
As such, the proposal accords with guidance in the National Planning Policy Framework and provisions of the local development plan and there are no other material considerations that warrant setting aside local planning policies.
General manager James Gaston told the Stray Ferret:
We have a demand for more space from the members, as well as our new internal cafe area.
A timeframe for completion of the project was not provided.
0