If you are accessing this story via Facebook but you are a subscriber then you will be unable to access the story. Facebook wants you to stay and read in the app and your login details are not shared with Facebook. If you experience problems with accessing the news but have subscribed, please contact subscriptions@thestrayferret.co.uk. In a time of both misinformation and too much information, quality journalism is more crucial than ever. By subscribing, you can help us get the story right.
Already a subscriber? Log in here.
27
Oct 2025

A Harrogate car wash facing enforcement action has once again submitted plans to operate.
Skipton Road Car Wash is subject to ongoing North Yorkshire Council action for operating without planning permission.
Applicants Mohammed Khader and Adnan Rusool lost an appeal against the council's refusal to grant permission.
The authority then ordered the car wash to cease trading and threatened legal action.
But Mr Khader - now listed as the sole applicant - is still seeking approval to operate and has now lodged fresh change of use plans.
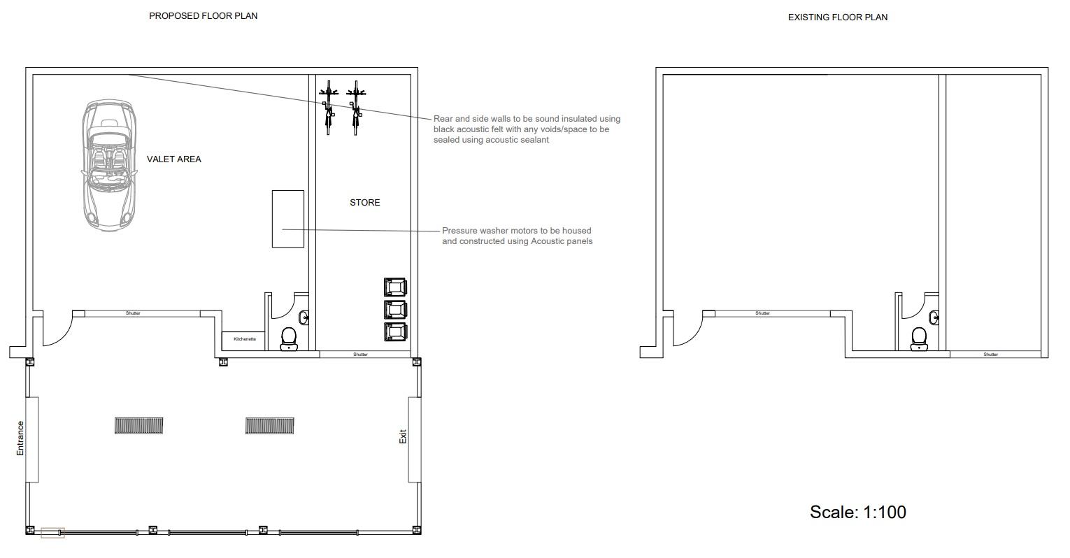
He has once again applied to convert the former Jewson builder's merchant site into a car wash, but the latest bid also includes plans to erect a single-storey extension unit.
According to planning documents, the extension would be added to an existing on-site unit – which would act as a valeting area – but the exact use of the extension area is not stated.

The proposed site layout as part of the latest proposal.
Plans add the rear and side walls of the existing garage would be sound insulated using black acoustic felt and any gaps would be sealed using acoustic sealant.
Skipton Road Car Wash currently has one hoover for valeting and two operational jet washers. The pressure washer motors would be housed in a small unit constructed out of acoustic panels, the proposal adds.
Mr Khader also seeks approval for an additional two parking spaces at the site – taking the total to nine – as well as two cycle spaces.
There are currently three full-time employees and two part-time employees at the car wash, which would remain unchanged, and the business would operate from 8.30am until 5.30pm, Monday to Saturday, and 10am until 5pm on Sundays, should plans be approved.
The Stray Ferret asked North Yorkshire Council, which confirmed on September 2 the car wash had been served an enforcement notice after continually operating without authorisation, what impact, if any, the new application has on the ongoing enforcement action.
Martin Grainger, the council's head of development management, said:
The enforcement notice has been served. The position remains unchanged. The council takes breaches of planning seriously and takes action to ensure that they are addressed.
When we asked the council if this means it will adjudicate on the plans as normal, a council spokesperson said: "Yes, it will be treated on its own merits.”

Proposed and existing elevations at the site.
The Skipton Road Car Wash saga has been ongoing for almost two years after plans to convert the site were originally put forward in December 2023.
They were withdrawn the following March, but the car wash continued to operate despite no additional proposals being submitted.
This prompted the council to launch an enforcement investigation in October 2024, which was soon suspended after the owners submitted a new application the following month.
The second application was rejected in April - but the saga was not over.
Mr Khader, alongside co-applicant at the time Mr Rusool, lodged an appeal to the Planning Inspectorate – the government body that deals with planning disputes – which dismissed the appeal in July.
But even that could not deter the operators, which led the council to order Skipton Road Car Wash to cease trading entirely — a request which has not yet been complied with.
The council will issue a verdict on the latest application at a later date.
1