If you are accessing this story via Facebook but you are a subscriber then you will be unable to access the story. Facebook wants you to stay and read in the app and your login details are not shared with Facebook. If you experience problems with accessing the news but have subscribed, please contact subscriptions@thestrayferret.co.uk. In a time of both misinformation and too much information, quality journalism is more crucial than ever. By subscribing, you can help us get the story right.
Already a subscriber? Log in here.
04
Apr 2024

Plans to build eight flats in Knaresborough have been submitted to North Yorkshire Council.
Applicant Paul Franklin has proposed building the flats on the site of one of the town's oldest houses and its garden off Stockwell Road.
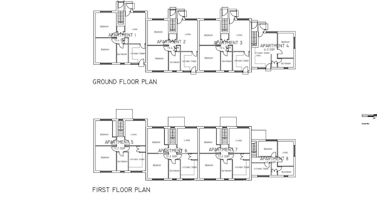
Under the plans, the existing property would be demolished and a two-storey building erected. The new building would house six two-bedroom flats and two one-bedroom apartments.
The plans also show landscaping and eight car parking places.
Mr Franklin submitted plans to the council last year for nine apartments on the plot. He told the Stray Ferret at the time the scheme would “provide local people a quality and sustainable place to live and enjoy Knaresborough”.
But those plans were withdrawn last summer after about 30 residents and Knaresborough Town Council objected. They raised concerns that the development would be “overbearing and will overlook neighbouring properties”, create parking problems and increase congestion.
The town council is among more than 20 objectors to the new plans.
It said in its submission to North Yorkshire Council:
The town council raised concerns about the increase in traffic, location of the refuse and recycling bins and “is not convinced that any lowering of levels will prevent overlooking onto neighbouring properties.”

13 Stockwell Rd flats floorplan. Image: DNA Group
0