If you are accessing this story via Facebook but you are a subscriber then you will be unable to access the story. Facebook wants you to stay and read in the app and your login details are not shared with Facebook. If you experience problems with accessing the news but have subscribed, please contact subscriptions@thestrayferret.co.uk. In a time of both misinformation and too much information, quality journalism is more crucial than ever. By subscribing, you can help us get the story right.
Already a subscriber? Log in here.
26
Nov 2024

Plans to convert former stables at a famous stud farm have been approved by North Yorkshire Council.
Copgrove Hall Farm and Stud is a 360-acre stud and cattle farm between Knaresborough and Boroughbridge.
The late racehorse owner and breeder Guy Reed trained many group one horses at Copgrove Hall Farm and Stud, which earned recognition as a premier thoroughbred breeding and boarding facility.
The farm is also one of only two remaining in the UK to have Murray Grey cattle, which are related to Aberdeen Angus.
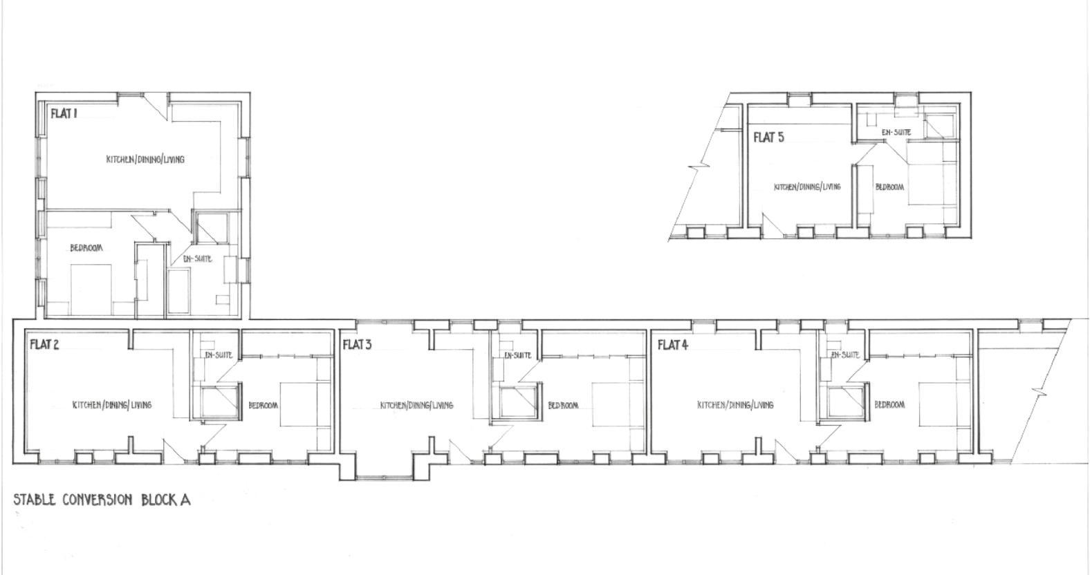
Plans were submitted under permitted development rules in October to convert a redundant stable block into six one-bedroom en-suite flats.
According to a planning statement sent to North Yorkshire Council, 12 full-time staff currently run the stud and farm operation.
The flats will provide on-site accommodation so staff can provide round-the-clock care to the cattle and horses.

The plans for the stable block at Copgrove Hall farm and stud
A planning statement added:
The increase in demand is to provide facilities for additional staff to meet the expanding operation of the farm and stud and provide apprenticeships and on-site training in both cattle and horse management.
The current arrangement is not fit-for-purpose and due to the size and scale of the site and there is a pressing need for more on site support. The proposal is to provide initially six new residential units by conversion of a range of redundant stables which been in use for many years.
The plans, which were designed by Dzign House Architecture, have now been approved.
The Stray Ferret contacted Copgrove Hall farm for comment.

The stables at Copgrove

Click here to gift someone a Stray Ferret subscription.
0