If you are accessing this story via Facebook but you are a subscriber then you will be unable to access the story. Facebook wants you to stay and read in the app and your login details are not shared with Facebook. If you experience problems with accessing the news but have subscribed, please contact subscriptions@thestrayferret.co.uk. In a time of both misinformation and too much information, quality journalism is more crucial than ever. By subscribing, you can help us get the story right.
Already a subscriber? Log in here.
18
May 2025

Plans to expand a food manufacturer in Ripon have been submitted.
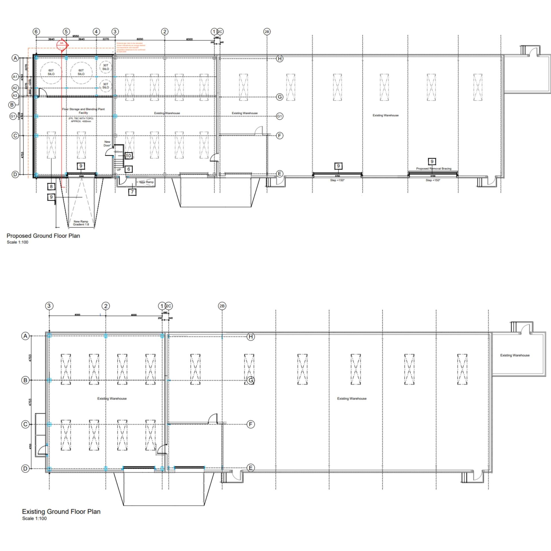
The application, which seeks approval to extend Ripon Select Foods Ltd’s existing storage and packaging facilities on Dallamires Lane, were put to North Yorkshire Council on May 15.
The eight-acre site currently encompasses a flour mill, rusk, breadcrumb, dry mix and battery factories, a gluten free product factory, an administration block, laboratories and warehousing.
Planning documents say the company has grown steadily over the last 25 years and now exports worldwide.
If approved, the proposed extension would house four silos and large roller shutter doors would be installed to facilitate deliveries and transportation of goods.
Plans say:
The building equates to some 135 square metres of additional factory floor area and matches the same gable depth of the host building. The additional width of three bays/9.5 metres allows for the servicing of the adjacent silos and associated vehicular movements.
There is no demolition proposed to facilitate the development, which partially takes up an existing hardstanding and does not extend into any areas of soft landscaping to the perimeter of the site.

The existing and proposed site plan. Credit: Harrogate Architectural
Planning documents add the extension would be a continuation of the existing buildings at the site, and would appear as a “cohesive, single structure adjacent to existing silo buildings".
The structure would be “well-contained” within the site, surrounded by other large units, meaning it would be “well-screened from public reach”.
Ripon Select Foods Ltd currently employs 95 full-time and eight part-time members of staff.
A document submitted by Harrogate Architectural Ltd on behalf of the firm says:
We believe the application would have a positive effect on business development, employment creation and the local economic growth. They would have no adverse impact on the character of the area, nor the amenity of the adjacent land users.
The application will be considered by the council at a later date.
0