If you are accessing this story via Facebook but you are a subscriber then you will be unable to access the story. Facebook wants you to stay and read in the app and your login details are not shared with Facebook. If you experience problems with accessing the news but have subscribed, please contact subscriptions@thestrayferret.co.uk. In a time of both misinformation and too much information, quality journalism is more crucial than ever. By subscribing, you can help us get the story right.
Already a subscriber? Log in here.
31
Jul 2024

Plans to create a swimming pool showroom in Harrogate have been submitted to North Yorkshire Council.
North Yorkshire Swimming Pools Ltd has applied to convert the former Yorkshire Care Equipment site into a showroom.
The company also wants to install two outdoor display pools.
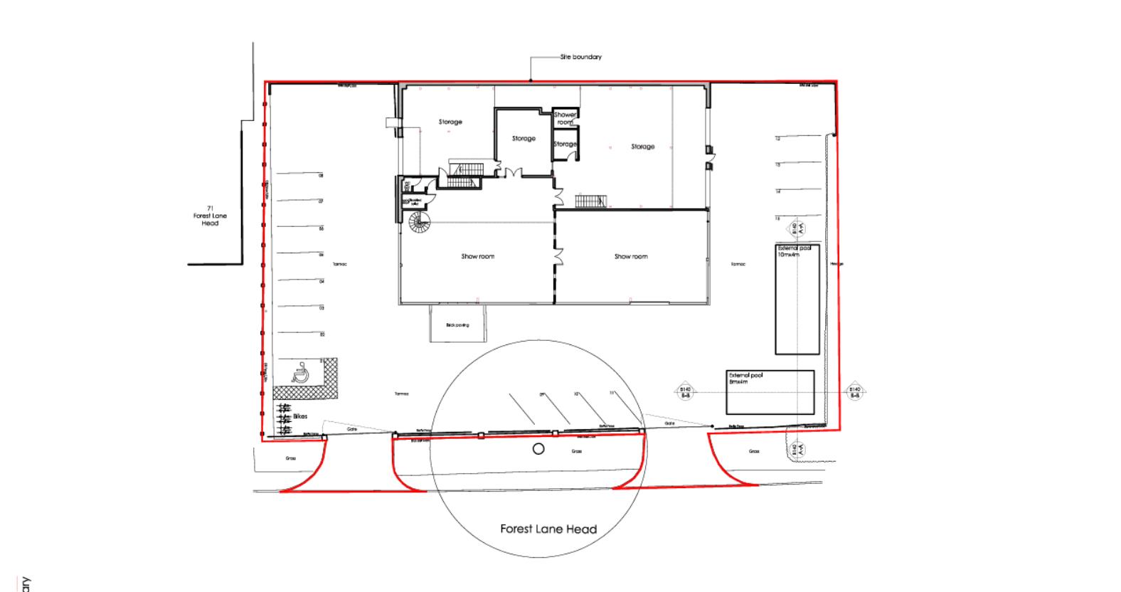
The facility would be situated at Linkside House, Forest Lane Head, between Starbeck and Knaresbough.
The vacant site has been advertised for sale by Leeds-based residential property consultants Titchmarsh & Bagley.
The unit was occupied by Yorkshire Care Equipment from 2009 until this year and operated as a car showroom prior to that.
The showroom, which would be open from 9am to 5pm Monday to Saturday and employ three staff, would be operated by North Yorkshire Swimming Pools Limited, a franchisee of Desjoyaux Pools.
Desjoyaux Pools already has showrooms in the south of England including, Essex, Kent, Surrey and Cambridgeshire.

Floorplan for the proposed showroom
The planning documents say:
Linkside House will operate as a showroom for potential customers to visit and view a small number of the pools available; and provide a central hub from which customers can enquire in relation to the broad range of pool-based services provided.
There will be limited items for sale in the showroom, such as chemicals and pool accessories, however this element will be ancillary to the primary use.
The site will be used as a showroom only to display swimming pools to potential customers, which means it will not operate like a traditional retail unit and customers will not be able to purchase goods to take away from the site.
The building on the site will remain unchanged by the proposal and the only modifications will be to the external areas to allow the introduction of 2 outdoor display pools and modifications to the car park.

The location of the planned showroom
The showroom would be open Monday to Saturday from 9am-5pm and closed on Sundays and Bank Holidays
There will be onsite parking and three jobs will be created, including roles as a receptionist, salesperson, and a pool technician.
North Yorkshire Council is yet to decide whether to accept the plans.
0