If you are accessing this story via Facebook but you are a subscriber then you will be unable to access the story. Facebook wants you to stay and read in the app and your login details are not shared with Facebook. If you experience problems with accessing the news but have subscribed, please contact subscriptions@thestrayferret.co.uk. In a time of both misinformation and too much information, quality journalism is more crucial than ever. By subscribing, you can help us get the story right.
Already a subscriber? Log in here.
11
Feb 2025

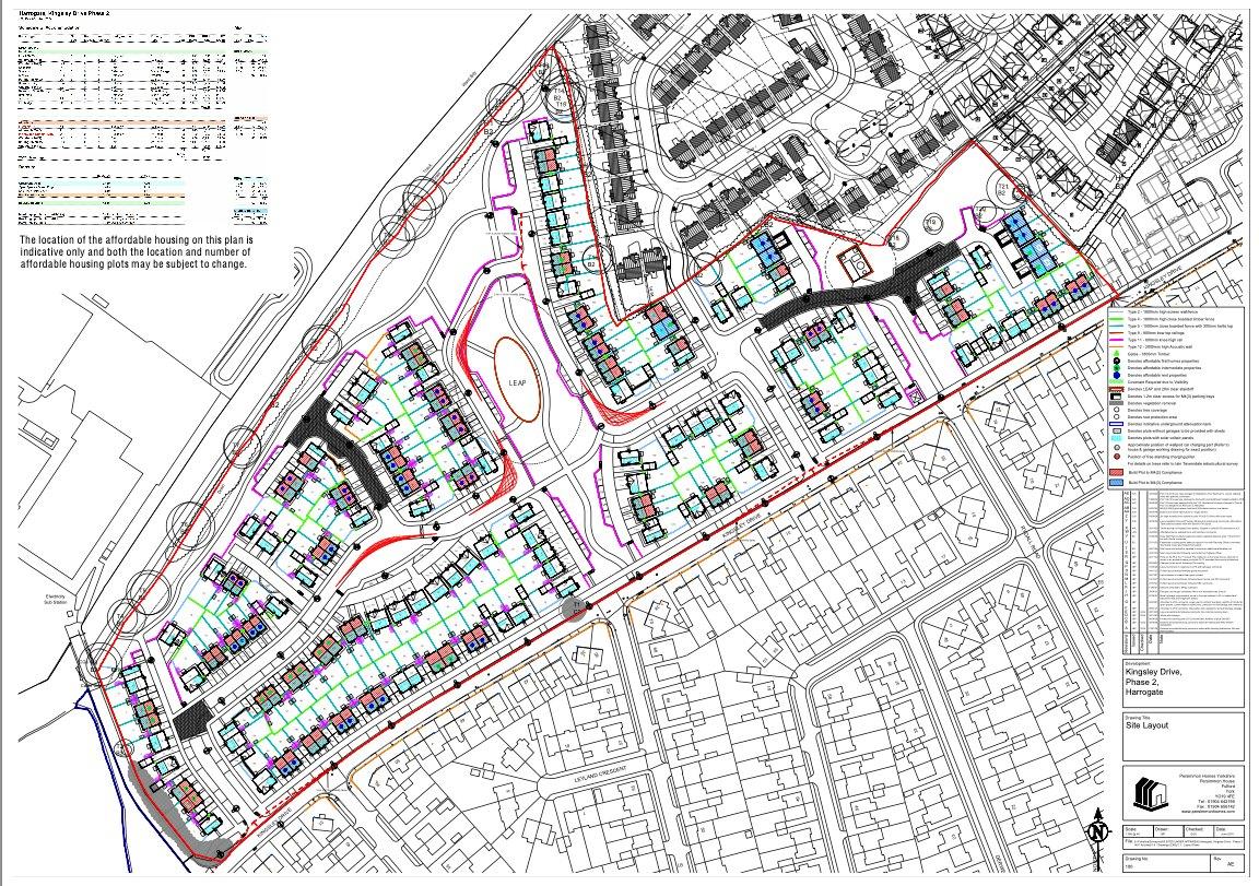
A travel plan has been published for the 162-home development on Kingsley Drive in Harrogate.
The site, which was one of the last undeveloped areas in the Kingsley area, is next to Harrogate High School.
The plan has been prepared by transport planning engineers Bryan G Hall on behalf of housebuilder Persimmon.
North Yorkshire Council granted Persimmon outline planning permission for the homes in February 2023, subject to conditions, including the creation of a travel plan.
The council now has to decide whether the plan is acceptable.
Site work has begun at the development, which has been named Long Lands View, and one to four-bedroom homes are already being marketed for between £322,000 and £522,000.
The travel plan says vehicles will be able to access the site from two locations on Kingsley Drive.
Four pedestrian-only access points will also be created: two on Kingsley Drive to the south and two linking to Nidderdale Greenway to the north.

The site off Kingsley Drive.
The plan says the nearest bus stops on the A59 Knaresborough Road, which are for the 1, 1A, 1B and 1C services, are about 500 metres from the centre of the site.
It acknowledges Chartered Institution of Highways and Transportation guidance states ‘the maximum walking distance to a bus stop should not exceed 400 metres and preferably be no more than 300 metres’.
But the plan adds these distances are ‘quoted for guidance and should not be followed slavishly if that would lead to complex or indirect bus routes’.
It adds:
There are a number of other bus stops along the A59 Knaresborough Road that may be closer, depending on the location of the resident within the proposed development, giving residents a choice of which bus stops are closer.

The site plan by Bryan G Hall.
The travel plan describes Kingsley Drive as a “designated on-road local cycle route”.
Persimmon has appointed Bryan G Hall as its travel plan coordinator for Long Lands View, with responsibility for the overall management and implementation of the travel plan, which will last for a minimum of five years.
The plan says:
A travel plan is not a static document; it evolves over time and adapts to reflect new guidance and emerging best practice. As such this travel plan will be updated by the travel plan coordinator for the site, which will be Bryan G Hall, following the resident travel surveys, to implement additional measures and to incorporate best practice where appropriate.
You can read the 45-page travel plan in full by visiting the council's planning portal here and typing reference number ZC25/00305/DISCON in the keyword search.
Use the comments below to give us your opinion on the scheme and the travel plan.
0