If you are accessing this story via Facebook but you are a subscriber then you will be unable to access the story. Facebook wants you to stay and read in the app and your login details are not shared with Facebook. If you experience problems with accessing the news but have subscribed, please contact subscriptions@thestrayferret.co.uk. In a time of both misinformation and too much information, quality journalism is more crucial than ever. By subscribing, you can help us get the story right.
Already a subscriber? Log in here.
03
Aug 2024

The makers of All Creatures Great and Small have been granted approval to continue operating in Summerbridge.
Playground Entertainment lodged a temporary change of use plan to North Yorkshire Council last October, seeking approval to continue using three units at New York Mills for filming and production.
According to the design and access statement, the company began using the site for production purposes in 2020 until 2023. It then applied to use the units and “associated land” for another five years.
Planit Consulting, which drew up the design and access statement on behalf of Playground Entertainment, said its prior use proved the site was “an ideal environment for filming activity”.
The three units will be primarily used to build interior sets, the document said, adding the sets will then be used for filming inside the building.
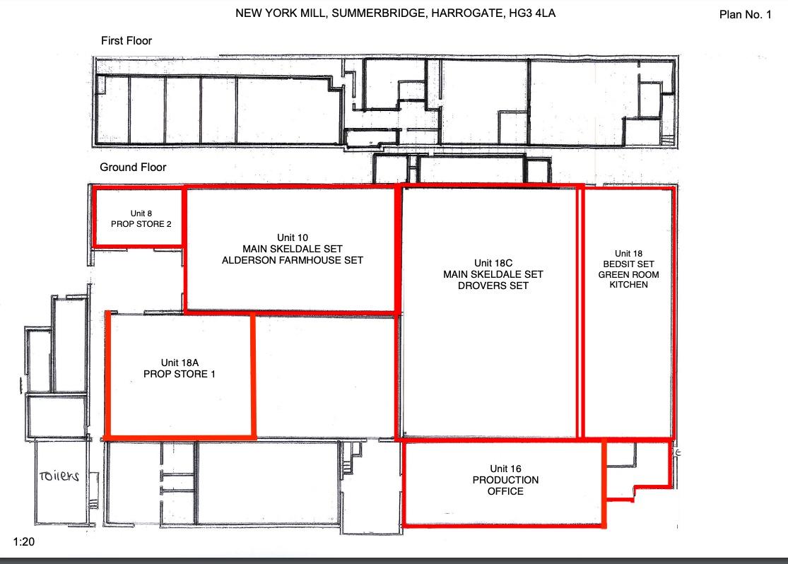
A site plan suggests All Creatures Great and Small will be filmed inside the units (pictured below). It includes set plans for the fictional Drovers pub and Skeldale veterinary practice, which most scenes are based around.

Site plan.
Other adjacent units, which the production company also has permission to use, will be used as storage and office spaces.
The document adds:
This extended time period for a further five years will cover all preparation, filming/shoot period and strike (clearance periods).
As before, the filming/shoot periods will take place sporadically over the temporary period. Following the end of the five years, all structures, set, plant and machinery will be removed as soon as practicable, and restoration works carried out to ensure the original condition of the land and individual units are reinstated.
Playground Entertainment will operate at the site “mainly five days a week”, from Monday to Friday.
However, the document states factors such as actors’ availability or weather conditions mean filming could at times take place on weekends.
Filming hours will generally be between 7am and 8am, but people could be on site from 4.30am until 9pm.
Before and after filming has taken place, staff can be on site between 7am and 6pm, the document adds.
The application also says there would be between 80 and 100 people accessing the site on filming days, including office staff, production crew, caterers and actors.
For this reason, there could also be large amounts of vehicles at the site. We have included a table, submitted as part of the design and access statement, with the estimated number of vehicles below.

The application states around 60% of filming will be done at the Summerbridge site, whilst the remaining 40% will be on location. It adds this means “larger technical trucks” will move in and out of the site.
However, it says vehicles will leave at 6.30am and return at 10pm, adding:
The production company will not want to be moving these trucks from the site to location at ‘rush hour’ and will endeavour to move them either early morning or late evening.
This will ensure minimal disturbance to the road network within the estate, and wider highway network.
Hartwith cum Winsley parish council neither objected, nor supported the application.
But councillors did request a condition that external parking for vehicles connected with the film-making does not extend to the B6165 – the main road that runs through Summerbridge.
Rebecca Micallef, an economy officer for the council, said New York Mills is a “key employment site”.
In her letter, which was submitted as part of the application, Ms Micallef said the department had “no economic development objection” to the plans, adding it will “continue to provide economic benefits to the local area”.
She attributes the financial gain to largely direct and indirect investment and “supply chain benefits”. Playground Entertainment's base also promotes the area to the creative industry and potential tourists, Ms Micallef wrote.
A public report by the council adds, however, the building will revert back to its “employment use” at the end of the permitted use, unless further extended.
This is to ensure there is no loss in overall employment and land provision long-term.
The application was approved on Monday, July 29 subject to conditions.

In character: Helen Alderson and James Herriot. Credit: Playground Entertainment
Playground Entertainment has produced several award-winning programmes and films.
Other than All Creatures Great and Small, filmed and set in god’s own county, the company is also behind an adaptation of King Lear starring Anthony Hopkins and Florence Pugh, Wolf Hall and The Missing.
It has also been recognised for stage productions including Harry Potter and the Cursed Child, the West End and Broadway versions of Dear Evan Hansen, Dreamgirls and Lucky Guy featuring Tom Hanks.
0