If you are accessing this story via Facebook but you are a subscriber then you will be unable to access the story. Facebook wants you to stay and read in the app and your login details are not shared with Facebook. If you experience problems with accessing the news but have subscribed, please contact subscriptions@thestrayferret.co.uk. In a time of both misinformation and too much information, quality journalism is more crucial than ever. By subscribing, you can help us get the story right.
Already a subscriber? Log in here.
21
Aug 2025

A Harrogate primary school has applied to open an on-site nursery.
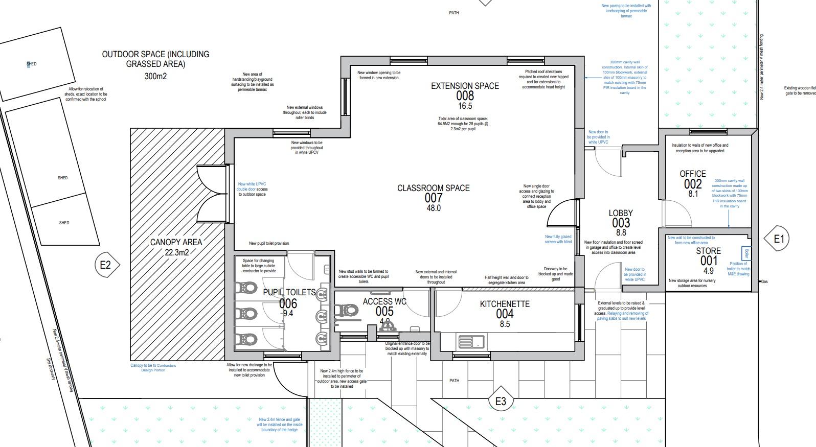
Coppice Valley Primary School, part of Red Kite Learning Trust, wants to convert its caretaker’s lodge into a teaching space with toilets and an office.
According to planning documents uploaded this week by North Yorkshire Council, a 16.5 square metre extension would be added to the 1980s lodge and internal alterations carried out.
Jonathan Timmis, chief operating officer at Red Kite Learning Trust, told the Stray Ferret the renovated unit would be used as a nursery for 26 new pupils.
It would be suitable for three-year-olds, he added.
The proposal says:
The proposal looks to utilise existing structure and provide a subservient extension to the rear to optimise the internal useable area and maximise the potential learning area, while retaining the current aesthetic.

A proposed site plan for the new nursery. Credit: Bowman Riley
The lodge’s door would be relocated to form a new entrance and the ground would be raised to create a level access to the building.
Patio doors will also be installed to provide access to an existing outdoor learning area, part of which would be covered by a proposed canopy, should plans be approved.
Pedestrian and vehicular access to the site will remain the same and four additional parking spaces will be created as part of the project.
New landscaping is also proposed.
Plans add:
This proposal for the adaptation of the historic caretaker's lodge allows the school to expand on the currently stretched facility and responds to the schools aspirations for growth, improved learning environments and operations.
The proposed design has a coherent language in-keeping with that of the existing building and is sympathetic to the surrounding context.
The building offers an accessible facility for students to learn and develop skills. It will ensure the school's facility aids to meet the school demand within the area of Harrogate.
When the Stray Ferret contacted Red Kite Learning Trust for comment, Mr Timmis said:
We’re so excited to be opening our very own nursery provision in September 2026.
Our nursery will provide places for 26 three-year-olds, with a curriculum designed by our experienced teaching staff to give children the very best start to their learning journey.
Children will also benefit from access to our forest school, enjoying hands-on outdoor learning and a love of nature from the very beginning. We can’t wait to welcome our youngest learners and their families into our community.
North Yorkshire Council will issue a verdict on the plans at a later date.
0