If you are accessing this story via Facebook but you are a subscriber then you will be unable to access the story. Facebook wants you to stay and read in the app and your login details are not shared with Facebook. If you experience problems with accessing the news but have subscribed, please contact subscriptions@thestrayferret.co.uk. In a time of both misinformation and too much information, quality journalism is more crucial than ever. By subscribing, you can help us get the story right.
Already a subscriber? Log in here.
21
Dec 2024

A Harrogate pre-school has been granted planning permission to create extra classrooms.
Little Crickets Pre-School submitted plans to North Yorkshire Council in October to extend its unit at the Harrogate Cricket Club ground on St George's Road.
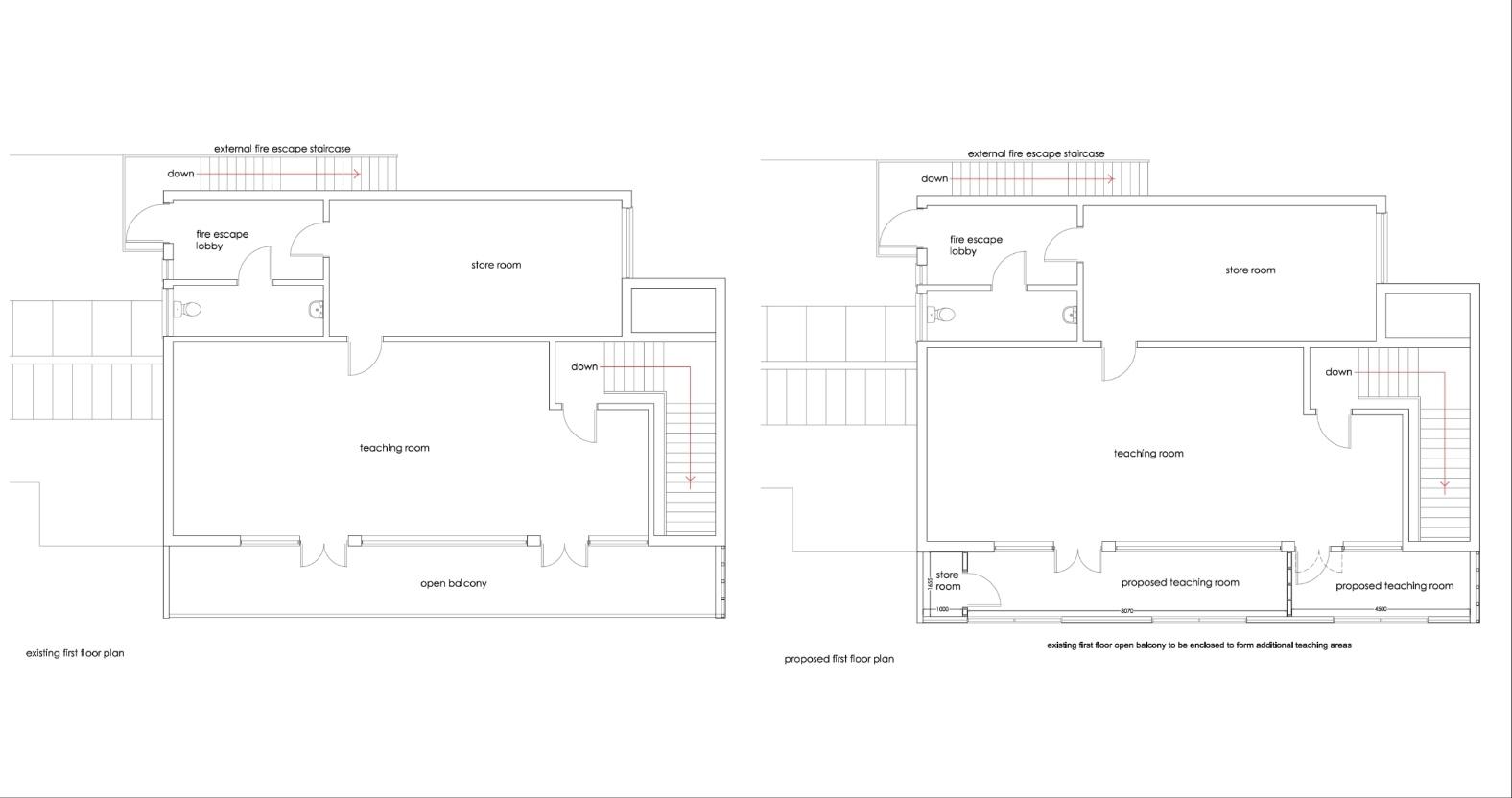
The nursery applied to create two more teaching rooms by infilling an existing first floor balcony.
Currently the space is used as a sheltered balcony and planning documents show that it will become an enclosed space providing teaching rooms and storage.
The infilled balcony will have three windows and be clad with white painted horizontal boarding.

Plans for Little Crickets pre-school expansion
Little Crickets provides care for children aged 18 months to 4 years old and currently has three learning spaces. The nursery currently has the space for 34 children.
Established in 1974 as Harlow Hilltop Pre-School, Little Crickets celebrated its 50th anniversary last month.
The pre-school is a non-profit registered charity managed by a voluntary management board of parents and carers.
The Stray Ferret contacted the pre-school but did not receive a response by time of publication.

Click here to gift someone a Stray Ferret subscription today.
0